Semineul Regnor este un focar pro cu samota, deschidere pe trei laturi si rama de montaj inclusa, potrivit pentru case cu recuperare si pentru incalzire eficienta.
Focarul pe lemne este ideal pentru incaperi rezidentiale de dimensiuni medii, fiind recomandat atat pentru case moderne, cat si pentru amenajari clasice. Se utilizeaza ca sursa de incalzire suplimentara, integrat in perete sau intr-o constructie decorativa. Se alimenteaza exclusiv cu lemn uscat de esenta tare, iar reglajul aerului permite controlul flacarii si al consumului. Datorita focarului pro cu samota si sistemului de autocuratare a geamului, intretinerea este simpla si eficienta, oferind o experienta de utilizare placuta si sigura.
Creeaza o atmosfera unica cu semineul REGNOR pe trei laturi.

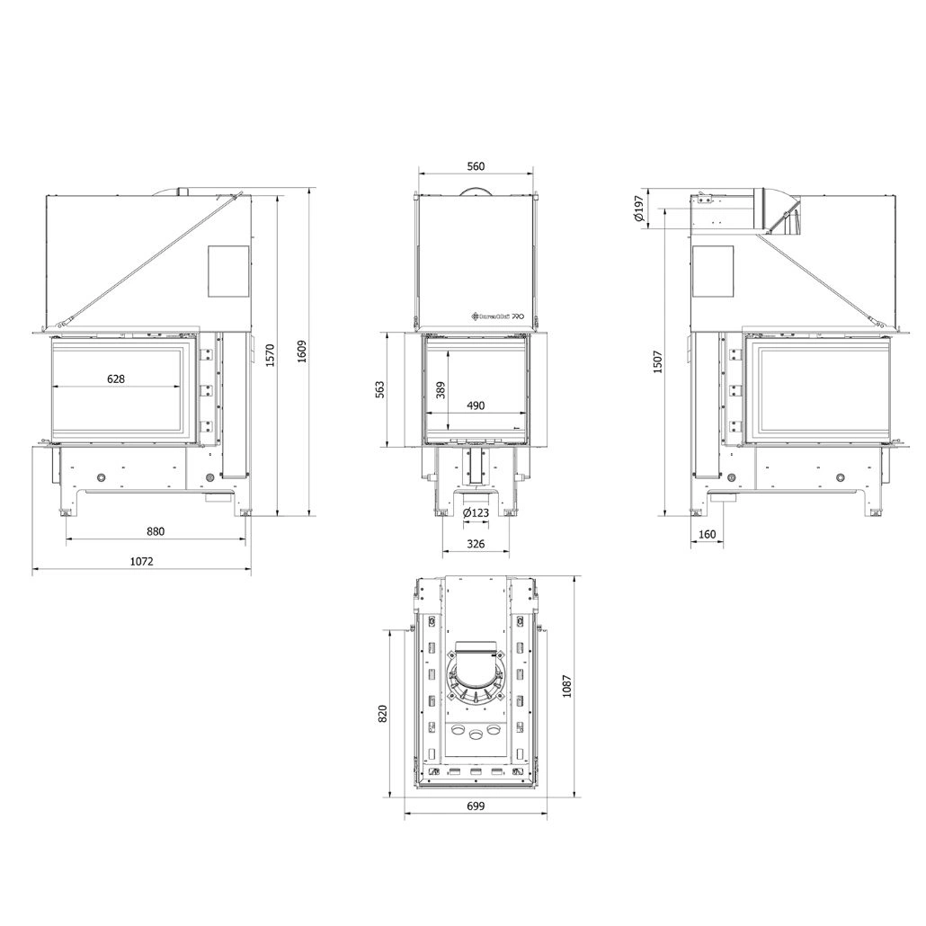
Semineul REGNOR are un singur element de control al aerului si vine cu rama de montaj inclusa pentru integrare corecta in constructie.
Setarea butonului de alimentare cu aer – de la 0% la 50%: Aerul este directionat catre peretele din spate al camerei de ardere, facilitand procesul de ardere si asigurand o combustie eficienta a gazelor, reducand astfel emisiile in atmosfera. In plus, aerul este distribuit prin canale catre geamurile laterale si geamul frontal, ajutand la mentinerea curateniei sticlei si oferind o vedere clara asupra focului, imbunatatind astfel aspectul estetic al semineului.
Setarea butonului de alimentare cu aer – de la 50% la 100%: Aerul este furnizat catre peretele din spate al camerei de ardere si prin canale catre geamurile laterale si frontale. De asemenea, aerul este directionat sub gratarul semineului, facilitand procesul de aprindere.
Semineul REGNOR este dotat cu doua deflectoare care creeaza un canal de convectie naturala pentru fluxul gazelor de ardere. Acest sistem creste eficienta arderii, asigurand o utilizare mai buna a energiei si, in acelasi timp, reduce emisia de substante nocive in atmosfera.

Bare decorative pe sticla
Adauga eleganta si un stil modern semineului, imbunatatindu-i aspectul unic.

Gratarul
Asigura o ardere uniforma si eficienta a lemnului, contribuind la o utilizare mai buna a combustibilului si la un randament termic crescut.

Camera de ardere spatioasa
Permite introducerea unei cantitati mai mari de lemne si previne varsarea cenusii la deschiderea usii, facand utilizarea si curatarea mai usoare.

Captuseala Termota
Un material care acumuleaza caldura si creste temperatura în camera de ardere, astfel incat, dupa stingerea semineului, caldura este transferata in încapere pentru o perioada indelungata. Disponibil în varianta alba sau neagra.

Sticla decorativa
Designul estetic negru ofera semineului un aspect elegant, transformandu-l nu doar intr-un element functional, ci si intr-o piesa deosebita in interior.

Reglarea admisiei de aer
Controlul procesului de ardere este extrem de simplu si intuitiv. Chiar si persoanele fara experienta in utilizarea semineelor pot ajusta cu usurinta fluxul de aer în functie de nevoile lor, asigurand astfel confort si comoditate.


Semineul Regnor este un focar pro cu samota, deschidere pe trei laturi si rama de montaj inclusa, potrivit pentru case cu recuperare si pentru incalzire eficienta.
Focarul pe lemne este ideal pentru incaperi rezidentiale de dimensiuni medii, fiind recomandat atat pentru case moderne, cat si pentru amenajari clasice. Se utilizeaza ca sursa de incalzire suplimentara, integrat in perete sau intr-o constructie decorativa. Se alimenteaza exclusiv cu lemn uscat de esenta tare, iar reglajul aerului permite controlul flacarii si al consumului. Datorita focarului pro cu samota si sistemului de autocuratare a geamului, intretinerea este simpla si eficienta, oferind o experienta de utilizare placuta si sigura.

