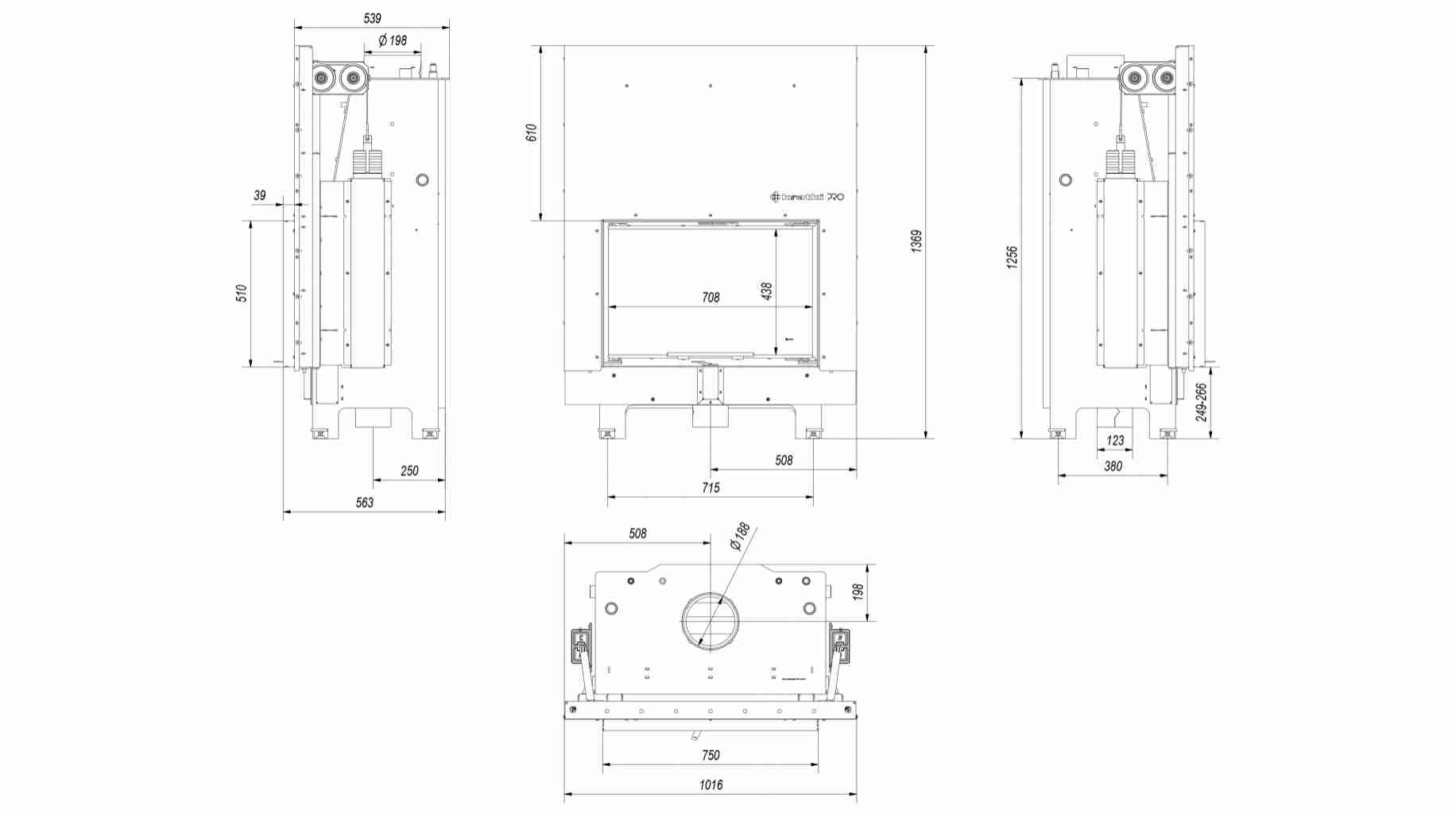
Semineul tip centrala cu deschidere verticala stil lift ofera un plus de confort la utilizare multumita sistemului special de glisare verticala a usii (stil lift). Pentru curatare usa poate fi deschisa standard (orizontal).
Sistem de tripla combustie a focarului: arderea primara directionata pe partea frontala a vatrei; arderea secundara se face tot cu aer proaspat adus prin ajutorul orificiilor amplasate pe peretele din spate a camerei de ardere. In plus a fost aplicat sistemul de curatare a sticlei cu aer proaspat din exterior preincalzit (perdea de aer).

Focarul MBO montat in showroom-ul unui partener de-al nostru, imbracat in marmura masiva cu aspect deosebit!
Procesul de ardere se desfasoara pe vatra (fara gratar) rezultand altfel o ardere cat mai completa si reziduuri de cenusa cat mai scazute. Energia termica obtinută din lemn de foc este exploatata la maxim.
Dotat cu serpentina de siguranta din cupru pentru protectie la supraincalzire (pene de curent, defectiuni pompa sau alte probleme) - intrare / iesire conector 1/2”.
Eficienta procesului de ardere, sticla mai curata si mentinerea temperaturii pentru un timp mai indelungat cu ajutorului captuselii de Accumote (samota) din interiorul camerei de ardere.
Termosemineul este echipat cu schimbator de caldura in conul termofocarului compus din tuburi amplasate orizontal ce maresc suprafata de recuperare a caldurii, reducand temperatura gazelor de evacuare si crescand astfel eficienta si puterea dispozitivului in apa.
Incinta termosemineului cat si usa sunt fabricate din otel refractar de inalta calitate cu o compozitie ridicata de carbon pentru o rezistenta ridicata la temperaturi inalte si durabilitate mare in timp.
Reglarea aerului se face cu usurinta doar prin actionarea unui singur regulator care impiedica o utilizare necorespunzatoare.
Sticla decorativa grafitata rezistenta la 800° C care ofera un aspect modern si elegant, largind vizual partea frontala a camerei de ardere.
Termosemineul este echipat cu racord pentru admisie a aerului din exterior de fi 125mm.
Etansari perfecte conform sudurilor solide realizate într-un ecran protector cu gaze nobile.
Maner elegant si confortabil de deschidere a usii.
Mai usor de montat multumita picioarelor reglabile.
Transport gratuit la domiciliu si garantie 5 ani.


