Semineu tip centrala cu randament crescut cu admisie a aerului de ardere din exterior si tripla combustie cu sistem de autocuratare a sticlei.
Din otel cu samota la interior , termoseminee cu randamente inalte de 86 % , model cu sticla eleganta de dimensiuni mari. Datorita samotei face autocuratare pe sticla si are o ardere curata a lemnului. Se racordeaza la calorifere sau sistem in pardoseala cu puffer, datorita bazinului mare de apa pentru incalzire tip centrala.
Sistem de tripla combustie a focarului: arderea primara directionata pe partea frontala a vatrei; arderea secundara se face tot cu aer proaspat adus prin ajutorul orificiilor amplasate pe peretele din spate a camerei de ardere. In plus a fost aplicat sistemul de curatare a sticlei cu aer proaspat din exterior preincalzit (perdea de aer).
Termosemineul este echipat cu schimbator de caldura in conul focarului compus din tuburi amplasate orizontal ce maresc suprafata de recuperare a caldurii, reducand temperatura gazelor de evacuare si crescand astfel eficienta si puterea dipozitivului in apa.
Procesul de ardere se desfasoara pe vatra (fara gratar) rezultand altfel o ardere cat mai completa si reziduuri de cenusa cat mai scazute. Energia termica obtinută din lemn de foc este exploatata la maxim.
Dotat cu serpentina de siguranta din cupru pentru protectie la supraincalzire (pene de curent, defectiuni pompa sau alte probleme) - intrare / iesire conector 1/2”.
Incinta termosemineului cat si usa sunt fabricate din otel refractar de inalta calitate cu o compozitie ridicata de carbon pentru o rezistenta ridicata la temperaturi inalte si durabilitate mare in timp.
Eficienta procesului de ardere, sticla mai curata si mentinerea temperaturii pentru un timp mai indelungat cu ajutorului captuselii de Accumote (samota) din interiorul camerei de ardere.
Sticla decorativa grafitata rezistenta la 800° C care ofera un aspect modern si elegant, largind vizual partea frontala a focarului.
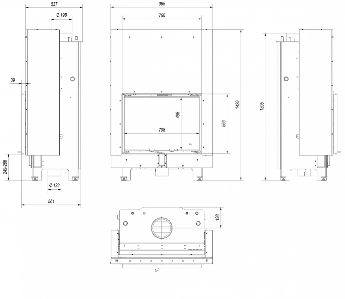
Termosemineul este echipat cu racord pentru admisie a aerului din exterior de fi 125mm.
Mai usor de montat multumita picioarelor reglabile.
Etansari perfecte conform sudurilor solide realizate într-un ecran protector cu gaze nobile.
Reglarea aerului se face cu usurinta doar prin actionarea unui singur regulator care impiedica o utilizare necorespunzatoare.
Depuneri de funingine reduse cu ajutorul sistemului de curatare a sticlei (perdea de aer).
Maner elegant si confortabil de deschidere a usii.
Transport gratuit la domiciliu si garantie 5 ani.

Semineu tip centrala cu randament crescut cu admisie a aerului de ardere din exterior si tripla combustie cu sistem de autocuratare a sticlei.
Din otel cu samota la interior , termoseminee cu randamente inalte de 86 % , model cu sticla eleganta de dimensiuni mari. Datorita samotei face autocuratare pe sticla si are o ardere curata a lemnului. Se racordeaza la calorifere sau sistem in pardoseala cu puffer, datorita bazinului mare de apa pentru incalzire tip centrala.

